x

Escribí tu consulta, y nos contactaremos a la brevedad.

Crespo 240, Rosario, Santa Fe

Fideicomiso YAPÚ

Fideicomiso Yapú, al igual que todos nuestros desarrollos, se destaca por su diseño, su excelente calidad constructiva y sus cuidadosas terminaciones. Está ubicado en una zona de continuo crecimiento y renovación edilicia, distinguida ahora por el "Plan Especial Cruce Alberdi”.

La intervención inmediata del sector aporta un valor de posicionamiento que resulta en una inversión atractiva y un agradable lugar para vivir. El proyecto consta de planta baja y 12 pisos compuestos por amplios departamentos de 1 y 2 dormitorios, oficina, Salón de Usos Múltiples, Solárium y Cocheras. 

Características generales Planta Baja, 12 pisos altos y S.U.M + Solarium en terraza

Planta Baja

  • Hall de Ingreso
  • 14 cocheras
  • Ingreso independiente a oficina
  • Accesos vehiculares independientes a ambas plantas

Planta 1° Piso

  • Oficina al frente 92 m²
  • 15 Cocheras

Planta 2° Piso

  • Dpto. A 1 dormitorio ventilación cruzada de 50 m² cubiertos, 5 m² de balcón y 26 m² de patio.
  • Dpto. B 1 dormitorio al frente de 45 m² cubiertos, 13 m² de balcón.
  • Dpto. C 1 dormitorio al contrafrente de 46 m² cubiertos, 5 m² de balcón y 45 m² de patio.

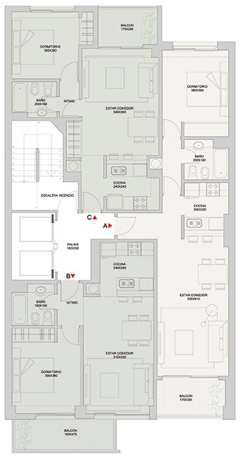
Planta tipo 3º al 7º Piso

  • Dpto. A 1 dormitorio ventilación cruzada de 50 m² cubiertos y 5.5 m² de balcón.
  • Dpto. B 1 dormitorio al frente de 45 m² cubiertos y 7 m² de balcón.
  • Dpto. C 1 dormitorio al contrafrente de 46 m² cubiertos y 5 m² de balcón.

Planta tipo 8º al 12º Piso

  • Dpto. A 2 dormitorios ventilación cruzada de 97m² cubiertos y 9.5m2 de balcón.
  • Dpto. B 1 dormitorio al frente de 45 m² cubiertos, 7 m² de balcón.

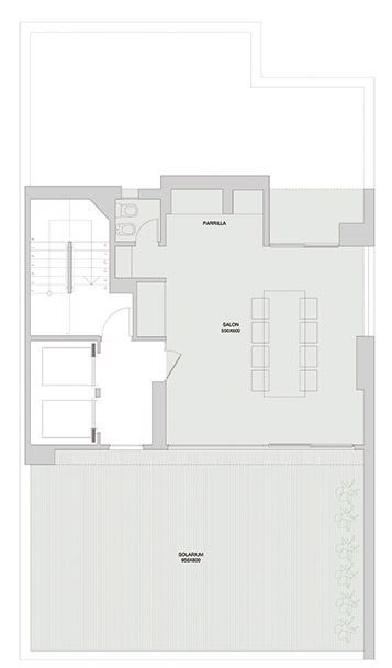
Terraza

  • S.U.M. de 46 m² cubiertos y 11 m² semicubiertos
  • Solárium de 55 m²

Excelente calidad constructiva

Ambientes amplios y cómodos

S.U.M. + Solárium en azotea

29 cocheras

Especificaciones técnicas

Construcción

  • Estructura independiente de hormigón armado.
  • Mampostería exterior de ladrillos a la vista.
  • Todas las unidades con balcones.
  • Ascensores de frecuencia variable y maniobra colectiva en acero inoxidable con tarjeta de control de acceso.
  • Paredes enduidas en yeso y semiterminadas en látex blanco.
  • Premarcos, marcos, aberturas exteriores de aluminio.
  • Marcos interiores metálicos con puertas placa de madera lustrada.

Interiores

  • Pisos de madera en dormitorios.
  • Pisos de porcelanato de 1º calidad en cocina, living, baño y balcón.
  • Muebles de cocina con mesada de granito y pileta de cero inoxidable.
  • Cocina y calefon instalados.
  • Marcos interiores metálicos con puertas placa de madera lustrada.
  • Placares con sistema de guias corredizas de aluminio y frentes de madera lustrada.
  • Herrajes de bronce platil.
  • Artefactos sanitarios FERRUM - ROCA.
  • Grifería FV.
  • Instalaciones para equipos de refrigeración por aire acondicionado tipo Split en todos los ambientes.
  • Instalaciones de telefonia y tv en Estar y Dormitorios.

Galería

Plantas

Planta baja
  • 15 cocheras
Planta 1º Piso
  • 14 cocheras
Planta 2º Piso
  • Departamento A
  • Cubierto 50 m²
  • Balcones 5 m²
  • Patio 26 m²
  • Departamento B
  • Cubierto 45 m²
  • Balcones 13 m²
  • Departamento C
  • Cubierto 46 m²
  • Balcones 5 m²
  • Patio 45 m²
Planta 3º al 7º Piso
  • Departamento A
  • Cubierto 50 m²
  • Balcones 5,5 m²
  • Departamento B
  • Cubierto 45 m²
  • Balcones 7 m²
  • Departamento C
  • Cubierto 46 m²
  • Balcones 5 m²
Planta 8º y 12º Piso
  • Departamento A
  • Cubierto 97 m²
  • Balcones 9.5 m²
  • Departamento B
  • Cubierto 45 m²
  • Balcones 7 m²
Terraza
S.U.M. + Solárium
  • S.U.M.
  • Cubierto 46m2
  • Semicubierto 11m2
  • Solárium
  • Solárium descubierto 55m2

Ubicación / Entorno

Plan especial
cruce Alberdi

Fideicomiso Yapú se desarrolla en un sector de continuo crecimiento y renovación edilicia, bordeado por arterias de escala urbana y regional como son Av. Francia y Av. Alberdi y Salta. Contiguo al barrio Pichincha, al parque Scalabrini Ortiz con su conocida actividad recreativa-deportiva y cercano al centro de la ciudad de Rosario.

La zona se revalorizó con el “Plan Especial Cruce Alberdi”. El mismo fue aprobado con la ordenanza municipal nº 9185/14 y considera el desarrollo de comercios, cocheras subterráneas, espacios públicos y seis torres de 20 pisos que se construirán en los terrenos de la empresa Cargill. Dicho plan contempla además, la extensión de la Avenida Bordabehere hacia el parque Scalabrini Ortiz y la prolongación de las calles Crespo, Iriondo y Cafferata uniéndose a la avenida antes mencionada. Esto vinculará la zona que integra el Fideicomiso Yapú con el parque Scalabrini Ortiz, el Alto Rosario Shopping, Puerto Norte y su entorno costero.

Ver en google maps