x

Escribí tu consulta, y nos contactaremos a la brevedad.

Tucumán 971, Rosario, Santa Fe

Fideicomiso LUNA

Fideicomiso Luna se desarrolla en un sector privilegiado de la ciudad de Rosario, sobre calle Tucumán al 971, a metros de Av. Belgrano. Esta vía de enlace a escala urbana y regional le permite acceder desde el Norte y el Sur de una manera ágil.

Características generales Subsuelo, Planta baja, S.U.M y 12 pisos altos

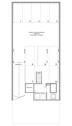
Planta Subsuelo

  • 10 cocheras.

Planta Baja

  • Hall de Ingreso en doble altura
  • 8 Cocheras
  • Accesos vehiculares

Planta 1° Piso

  • S.U.M. con ingreso independiente
  • 8 Cocheras

Planta 2° Piso

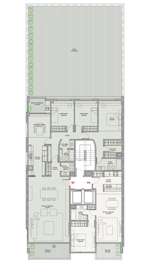
  • Dpto. A 3 dormitorios Cubierto 140m² Balcones 20m² Patio 125m²
  • Dpto. B 1 dormitorio Cubierto 51m² Balcones 6m²

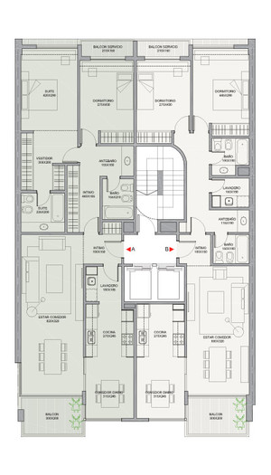
Planta tipo 3º al 6º Piso

  • Dpto. A 2 dormitorios Cubierto 106m² Balcones 10m²
  • Dpto. B 2 dormitorios Cubierto 90m² Balcones 10m²

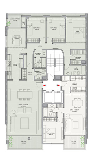
Planta 7º al 12º Piso

  • Dpto. A 3 dormitorios Cubierto 140m² Balcones 20m²
  • Dpto. B 1 dormitorio Cubierto 51m² Balcones 6m²

Diseño y calidad constructiva

Calidez y funcionalidad

S.U.M. con acceso independiente

26 cocheras

Especificaciones técnicas

Exterior

  • Estructura independiente de hormigón armado.
  • Piel de hormigón visto.
  • Premarcos, marcos y aberturas exteriores de aluminio con termopaneles de doble vidriado hermético.
  • Barandas de vidrio laminado.

Interiores

  • Hall de ingreso con frente vidriado en doble altura.
  • Ascensores automáticos de frecuencia variable y maniobra colectiva, revestidos en acero inoxidable y espejos.
  • Ventilación cruzada.
  • Todas las unidades al frente, balcones.
  • Paredes enduidas en yeso y semiterminadas en látex blanco.
  • Pisos de madera en dormitorios.
  • Pisos de porcelanato de primera calidad en cocina, living, baño y balcón.
  • Muebles de cocina con mesada de granito y pileta de acero inoxidable.
  • Anafe y horno instalados.
  • Marcos interiores metálicos con puertas placa de madera lustrada.
  • Frente de placares con puertas corredizas, guías de aluminio.
  • Herrajes de bronce platil / aluminio.
  • Artefactos sanitarios FERRUM - ROCA.
  • Grifería FV.
  • Instalaciones para equipos de refrigeración por aire acondicionado tipo Split en todos los ambientes.
  • Instalación de cañerías y caldera para calefacción y agua caliente.
  • Instalaciones de telefonía y TV en sala de estar y dormitorios.

Galería

Plantas

Planta Subsuelo
  • Espacio para estacionar
  • 1 a 10 (10 espacios)
Subsuelo
Planta baja
  • Hall Ingreso /Ingresos vehiculares
  • Espacio para estacionar
  • 11 a 18 (8 espacios)
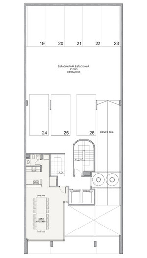
Planta 1º Piso
  • S.U.M. Acceso independiente desde PB
  • Espacio para estacionar
  • S.U.M. Acceso independiente desde PB
  • 19 a 26 (8 espacios)
Planta 2º Piso
  • Departamento A
  • 3 dormitorios
  • Cubierto 140m²
  • Balcones 20m²
  • Patio 125m²
  • Departamento B
  • 1 dormitorio
  • Cubierto 51m²
  • Balcones 6m²
Planta 3º al 6º Piso
  • Departamento A
  • 2 dormitorios
  • Cubierto 106m²
  • Balcones 10m²
  • Departamento B
  • 2 dormitorios
  • Cubierto 90m²
  • Balcones 10m²
Planta 7º al 12º Piso
  • Departamento A
  • 3 dormitorios
  • Cubierto 140m²
  • Balcones 20m²
  • Departamento B
  • 1 dormitorio
  • Cubierto 51m²
  • Balcones 6m²

Ubicación / Entorno

Aparece enmarcado por el parque España al Norte y el Parque Nacional a la Bandera al Sur y descendiendo, sobre el borde del río, se encuentra el nuevo Paseo Costanera Joven del Paraná, el Centro de Expresiones Contemporáneas y los nuevos salones y auditorios. Hacia el interior de la ciudad, a pocas cuadras, se ubica el centro administrativo y comercial.

Estas circunstancias geográficas y urbanas posicionan al proyecto argumentando la sustentabilidad económica del mismo.

Ver en google maps